Lote en parque industrial para Bodega en Venta en Itagui,
- $3,672,000,000
Resumen
- lote-terreno
- 0
- 0
- 4
- 1360 m²
- 2019
Descripción
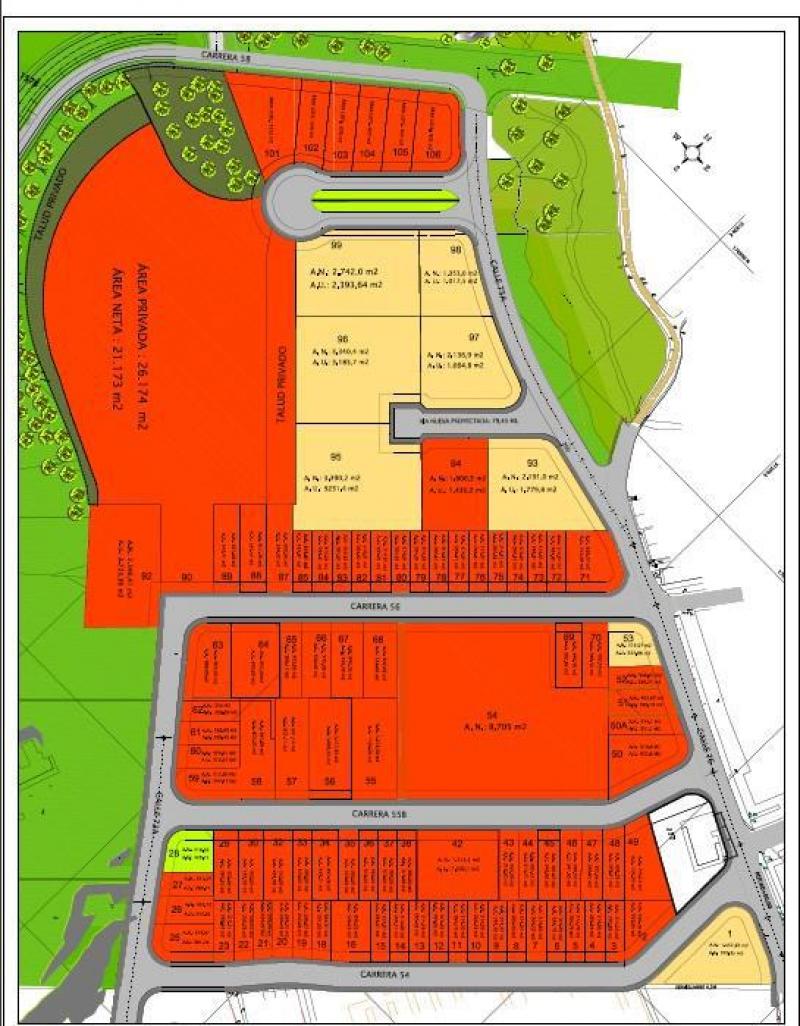
Lote Industrial en venta en MEDELLIN, para construir bodega , Zona sur, excelente ubicación y vías de acceso,ideal para crear tu espacio a mediano plazo, con las mejores especificaciones, en un parque empresarial, para estar cerca de todo. Valor venta del metro cuadrado de $2`700.000, Proyecto de gran formato. Lotes urbanizados para construir bodegas de uso industrial y comercial. Ubicación: Itagüí, Número de unidades:21 lotes, Ancho de vìas: 10.5m,más andenes de 2.5m.
Detalles
Updated on marzo 10, 2026 at 11:44 pm-
ID de propiedad 5251563
-
Precio $3,672,000,000
-
Tamaño de propiedad 1360 m²
-
Dormitorio 0
-
Baño 0
-
Garajes 4
-
Año de construcción 2019
-
Tipo de propiedad lote-terreno
-
Estado de la propiedad Venta
Detalles adicionales
-
Estrato 3
-
Área Terreno 1360 m²
-
Zona / Barrio Itagüí Santamaria
-
Ciudad Itagui
-
Departamento Antioquia
Calculadora de hipotecas
Mensual
-
Pago inicial
-
Monto de Préstamo
-
Pago Mensual de Hipoteca
Información de contacto
Ver anunciolistados similares
Lote en Arriendo en Rionegro, Sector Batallón Juan del Corral
Autopista, Rionegro, Antioquia Detalles- ayhrealestate.com

